17321 WOODCREST WAYCLERMONT, FL 34714




Mortgage Calculator
Monthly Payment (Est.)
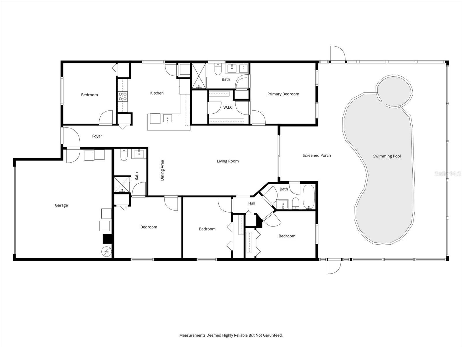
$1,779Welcome to 17321 Woodcrest Way, a beautifully maintained fully furnished home located in a desirable Clermont community. This inviting residence offers a spacious, open layout with ceramic tile flooring in all living areas and bedrooms, providing a clean, cohesive, and low maintenance design. The kitchen features granite countertops, stainless steel appliances, and an upgraded kitchen sink, while the bathrooms are finished with granite countertops, adding a modern and polished touch throughout the home. Step outside to enjoy a private screened in pool and spa that can be heated for year round use. The backyard offers a peaceful pond view, creating a serene and private outdoor setting perfect for relaxing or entertaining. With multiple bedrooms and flexible living spaces, this move in ready furnished property is ideal as a primary residence, vacation home, or investment opportunity. Conveniently located near US27, shopping, dining, golf courses, and Central Florida attractions including world famous theme parks, this home delivers an exceptional combination of comfort, lifestyle, and location. Schedule your private showing today and experience all this home has to offer.
| 18 hours ago | Listing updated with changes from the MLS® | |
| yesterday | Listing first seen on site |
Listing information is provided by Participants of the Stellar MLS. IDX information is provided exclusively for personal, non-commercial use, and may not be used for any purpose other than to identify prospective properties consumers may be interested in purchasing. Information is deemed reliable but not guaranteed. Properties displayed may be listed or sold by various participants in the MLS Copyright 2026, Stellar MLS.
Last checked: 2026-02-13 01:05 AM EST
Did you know? You can invite friends and family to your search. They can join your search, rate and discuss listings with you.