2305 COLDSTREAM DRIVEWINTER PARK, FL 32792




Mortgage Calculator
Monthly Payment (Est.)
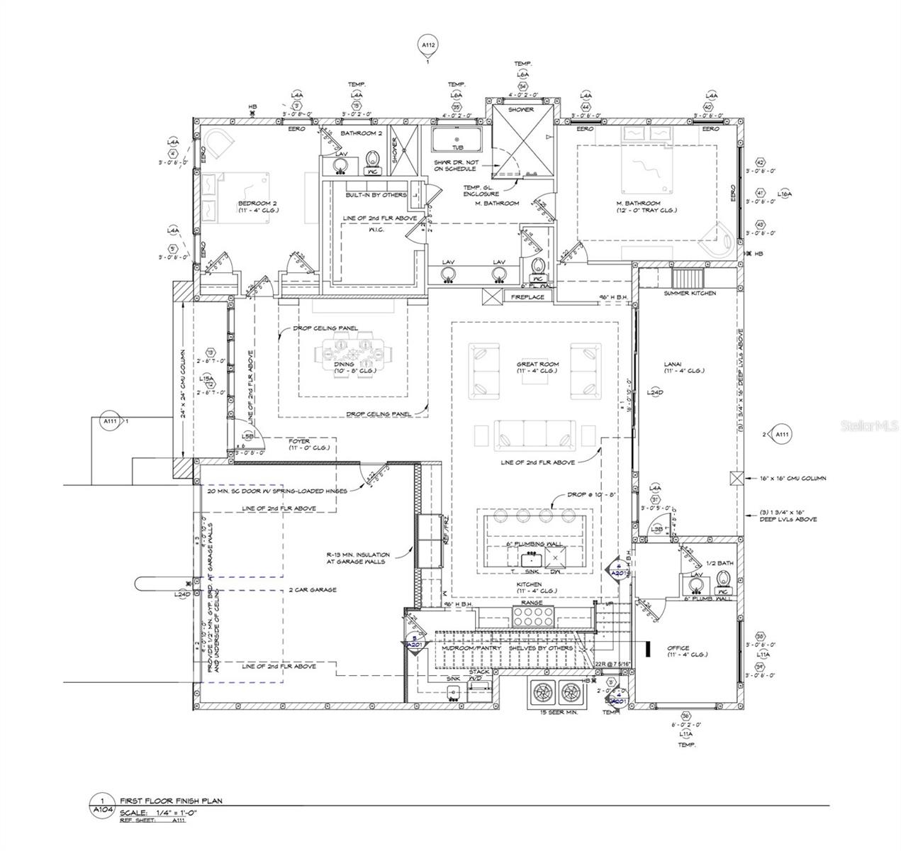
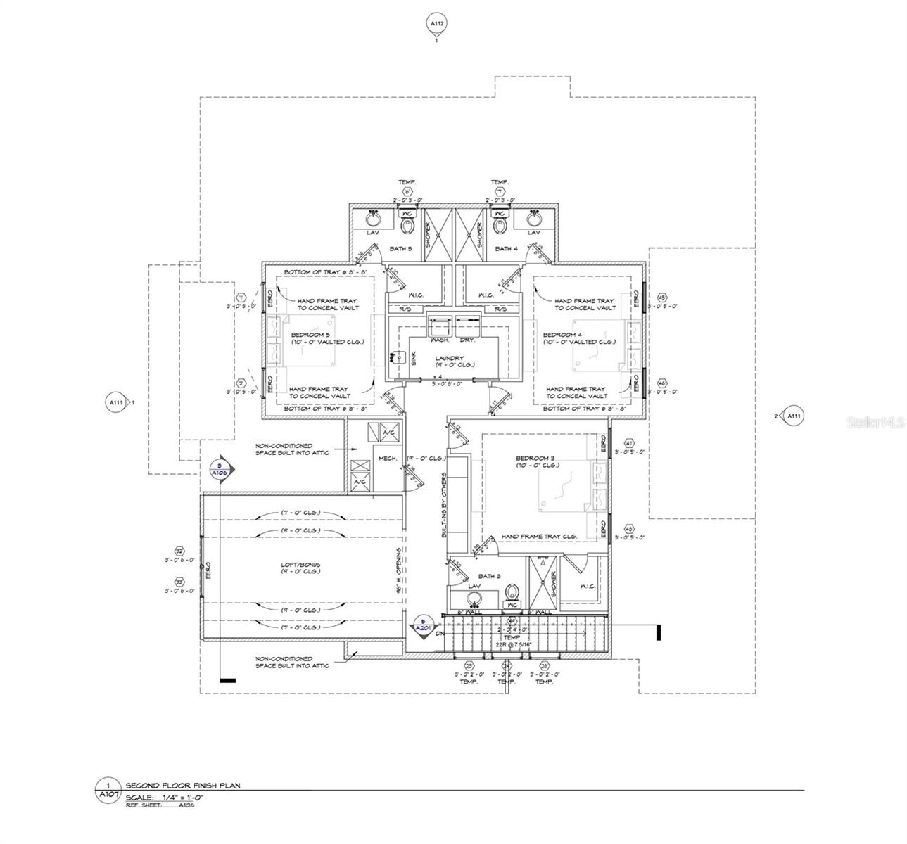
$8,326Under contract-accepting backup offers. Under Construction. A rare opportunity to own brand-new construction in desirable Brookshire Heights, this thoughtfully designed residence blends timeless finishes with modern functionality. Featuring 5 bedrooms, a dedicated office, and a spacious bonus room, the floor plan is both highly livable and exceptionally functional—ideal for everyday living and entertaining alike. All bedrooms are ensuite, offering comfort and privacy throughout, while hardwood floors run seamlessly across the entire home. Thoughtful architectural details, including custom ceiling treatments and built-ins, add depth and character throughout. The first-floor primary suite serves as a true retreat, complete with dual shower heads and a rain shower for a spa-like experience. In addition to the primary, the secondary bedrooms and office are all conveniently located on the first floor—providing a layout that lives comfortably day-to-day. Upstairs, you’ll find three spacious bedrooms, each with its own full bath, along with a generous bonus room and a large laundry room—offering flexibility for guests, family, or additional living space. Perfectly positioned within steps to Brookshire Elementary, the home is also just moments from the Cady Way Trail, Little League fields, parks with covered pavilions, and nearby medical facilities. Shopping, dining, and everyday essentials are just minutes away, with Park Avenue’s renowned restaurants and boutiques a short drive from your doorstep. A seamless blend of location, thoughtful design, and livability, this home offers an exceptional opportunity in one of Winter Park’s most established neighborhoods.
| 4 weeks ago | Listing updated with changes from the MLS® | |
| 4 weeks ago | Status changed to Pending | |
| 2 months ago | Listing first seen on site |
Listing information is provided by Participants of the Stellar MLS. IDX information is provided exclusively for personal, non-commercial use, and may not be used for any purpose other than to identify prospective properties consumers may be interested in purchasing. Information is deemed reliable but not guaranteed. Properties displayed may be listed or sold by various participants in the MLS Copyright 2026, Stellar MLS.
Last checked: 2026-05-19 01:47 AM EDT
Did you know? You can invite friends and family to your search. They can join your search, rate and discuss listings with you.